Renta Nave Industrial 800 m² en Castelli Park Mérida, Yucatán
Mérida, Mérida, Yucatán
- $77,200 En Renta
- 560 m² de construcción
- 800 m² de terreno
- 3 Estacionamientos
Ver Tour Virtual
Detalles
- Tipo: Nave industrial
- ID: EB-UF8569
- Clave interna: 45
- Antigüedad: A estrenar
- Pisos: 1
Descripción
Nave industrial en Mérida disponible para renta, lista para operar en diciembre con todos los permisos en regla. Ubicada en Castelli Park, el parque industrial con acceso inmediato al Periférico y al Anillo Vial Metropolitano, además de una conexión estratégica con los principales nodos logísticos del sureste: Puerto Progreso, Tren Maya y Aeropuerto Internacional de Mérida.
Nave configurable con posibilidad de integrar oficinas ejecutivas, sistemas contra incendio y CCTV, ideal para uso de almacenamiento, distribución o logística.
Características de la nave:
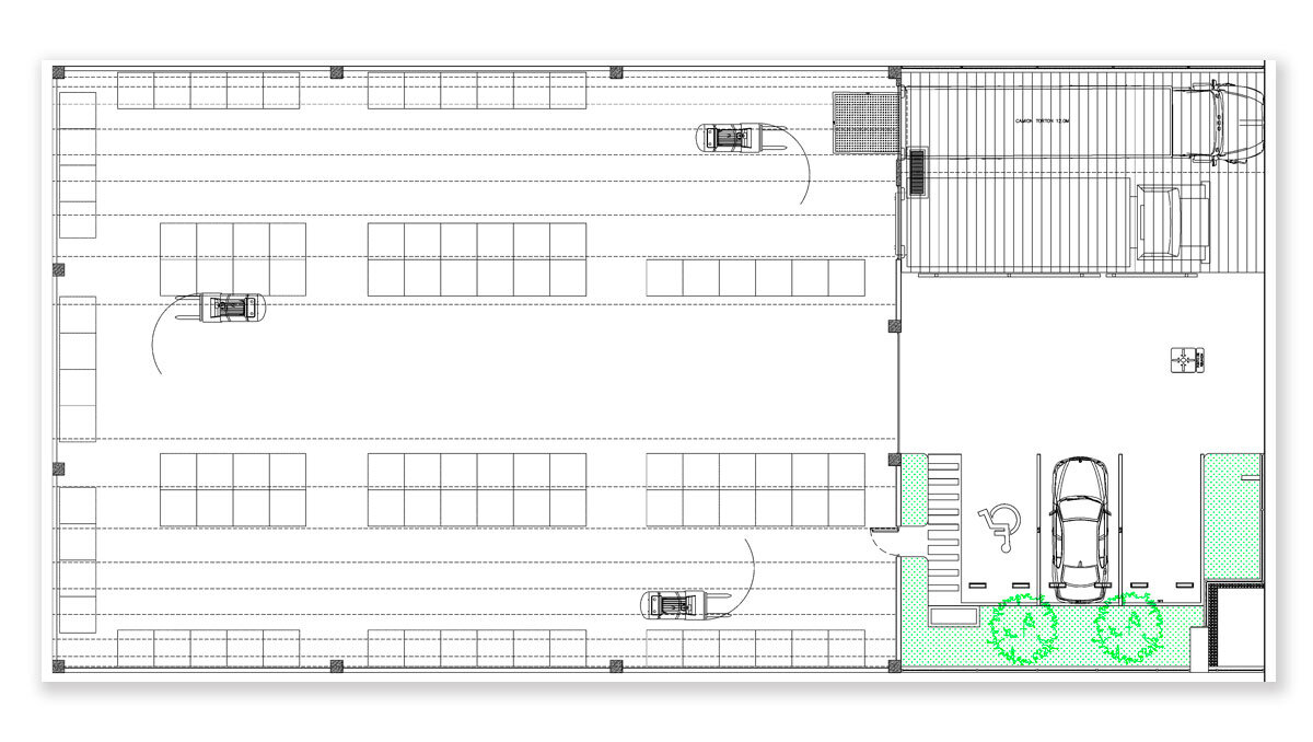
- Terreno privado de 800 m2
- Nave 560 m2
- Patio de maniobras y servicios 240 m2
- Altura máxima 10m
- 3 cajones de estacionamiento independientes para vehículos
- 2 andenes para carga y descarga independientes en cada nave
- Rampa para vehículos ligeros y pesados
- Pisos MR de alta resistencia
- Servicios independientes por nave (agua, acometida eléctrica en tres fases, fibra óptica)
- Patios de maniobras con posibilidad de cerca perimetral
-Oficinas con comedor y núcleos sanitarios (opcional)
- Cortinas enrollables mecánicas
Beneficios del parque:
-Ecotecnologías
- Urbanización de primer nivel
- Control de acceso
- Vigilancia 24/7
- Vialidades con asfalto
- Iluminación urbana solar
- Drenaje pluvial (Recarga de mantos acuíferos)
- Fibra óptica
- Red de agua potable
- Hotel operativo
El precio publicado es más IVA
En Castelli Park no solo adquieres una inversión estratégica, sino un modelo integral de soluciones ilimitadas.
Contáctanos hoy y agenda tu visita.
Nave configurable con posibilidad de integrar oficinas ejecutivas, sistemas contra incendio y CCTV, ideal para uso de almacenamiento, distribución o logística.
Características de la nave:
- Terreno privado de 800 m2
- Nave 560 m2
- Patio de maniobras y servicios 240 m2
- Altura máxima 10m
- 3 cajones de estacionamiento independientes para vehículos
- 2 andenes para carga y descarga independientes en cada nave
- Rampa para vehículos ligeros y pesados
- Pisos MR de alta resistencia
- Servicios independientes por nave (agua, acometida eléctrica en tres fases, fibra óptica)
- Patios de maniobras con posibilidad de cerca perimetral
-Oficinas con comedor y núcleos sanitarios (opcional)
- Cortinas enrollables mecánicas
Beneficios del parque:
-Ecotecnologías
- Urbanización de primer nivel
- Control de acceso
- Vigilancia 24/7
- Vialidades con asfalto
- Iluminación urbana solar
- Drenaje pluvial (Recarga de mantos acuíferos)
- Fibra óptica
- Red de agua potable
- Hotel operativo
El precio publicado es más IVA
En Castelli Park no solo adquieres una inversión estratégica, sino un modelo integral de soluciones ilimitadas.
Contáctanos hoy y agenda tu visita.
Amenidades
- Andén
- Facilidad para estacionarse
- Accesibilidad para personas con discapacidad
- Seguridad 24 horas
Ubicación
Mérida, Mérida, Yucatán
Contáctanos











