Venta - Renta Nave Industrial AAA 2080 m² en Castelli Park Mérida, Yucatán
Mérida, Mérida, Yucatán
- $35,256,000 En Venta
- $260,000 En Renta
- 1,518 m² de construcción
- 2,080 m² de terreno
- 8 Estacionamientos
Ver Tour Virtual
Detalles
- Tipo: Nave industrial
- ID: EB-UF8419
- Clave interna: NAVE3-4
- Antigüedad: A estrenar
- Pisos: 1
Descripción
Nave industrial en Mérida disponible para venta o renta, lista para operar con todos los permisos en regla. Ubicada en Castelli Park, el parque industrial con acceso inmediato al Periférico y al Anillo Vial Metropolitano, además de una conexión estratégica con los principales nodos logísticos del sureste: Puerto Progreso, Tren Maya y Aeropuerto Internacional de Mérida.
Nave configurable con posibilidad de integrar oficinas ejecutivas, paneles solares, pozos de absorción, sistemas contra incendio y CCTV, etc.
Características de la nave:
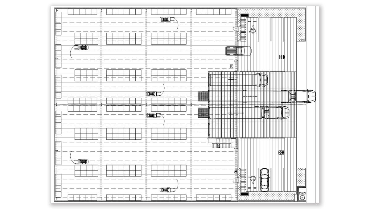
- Terreno privado de 2080 m2
- Nave 1518 m2
- Patio de maniobras y servicios 562 m2
- Altura máxima 11 m
- 8 cajones de estacionamiento independientes para vehículos
- 4 andenes para carga y descarga independientes
- 2 rampas para vehículos ligeros y pesados
- Pisos MR de alta resistencia
- Servicios independientes por nave (agua, acometida eléctrica en tres fases, fibra óptica)
- Patios de maniobras con posibilidad de cerca perimetral
-Oficinas con comedor y núcleos sanitarios (opcional)
- Cortinas enrollables mecánicas
Beneficios del parque:
-Ecotecnologías
- Urbanización de primer nivel
- Control de acceso
- Vigilancia 24/7
- Vialidades con asfalto
- Iluminación urbana solar
- Drenaje pluvial (Recarga de mantos acuíferos)
- Fibra óptica
- Red de agua potable
- Hotel operativo
El precio publicado es más IVA
En Castelli Park no solo adquieres una inversión estratégica, sino un modelo integral de soluciones ilimitadas.
Contáctanos hoy y agenda tu visita.
Nave configurable con posibilidad de integrar oficinas ejecutivas, paneles solares, pozos de absorción, sistemas contra incendio y CCTV, etc.
Características de la nave:
- Terreno privado de 2080 m2
- Nave 1518 m2
- Patio de maniobras y servicios 562 m2
- Altura máxima 11 m
- 8 cajones de estacionamiento independientes para vehículos
- 4 andenes para carga y descarga independientes
- 2 rampas para vehículos ligeros y pesados
- Pisos MR de alta resistencia
- Servicios independientes por nave (agua, acometida eléctrica en tres fases, fibra óptica)
- Patios de maniobras con posibilidad de cerca perimetral
-Oficinas con comedor y núcleos sanitarios (opcional)
- Cortinas enrollables mecánicas
Beneficios del parque:
-Ecotecnologías
- Urbanización de primer nivel
- Control de acceso
- Vigilancia 24/7
- Vialidades con asfalto
- Iluminación urbana solar
- Drenaje pluvial (Recarga de mantos acuíferos)
- Fibra óptica
- Red de agua potable
- Hotel operativo
El precio publicado es más IVA
En Castelli Park no solo adquieres una inversión estratégica, sino un modelo integral de soluciones ilimitadas.
Contáctanos hoy y agenda tu visita.
Amenidades
- Andén
- Facilidad para estacionarse
- Accesibilidad para personas con discapacidad
- Rampas
- Seguridad 24 horas
Ubicación
Mérida, Mérida, Yucatán
Contáctanos











