Inmobiliaria de Miguel Sanchez

  • LegadoBienesRaices.easybroker.com

Venta - Renta Nave Industrial AAA 2080 m² en Castelli Park Mérida, Yucatán

Mérida, Mérida

$35,256,000 For Sale

$260,000 For Rent

  • 8 Parking spaces
  • 1,518 m² total space
  • 2,080 m² Lot Size
  • 1 Floors
  • New Age
  • EB-UF8419 ID
Description

Nave industrial en Mérida disponible para venta o renta, lista para operar con todos los permisos en regla. Ubicada en Castelli Park, el parque industrial con acceso inmediato al Periférico y al Anillo Vial Metropolitano, además de una conexión estratégica con los principales nodos logísticos del sureste: Puerto Progreso, Tren Maya y Aeropuerto Internacional de Mérida.

Nave configurable con posibilidad de integrar oficinas ejecutivas, paneles solares, pozos de absorción, sistemas contra incendio y CCTV, etc.

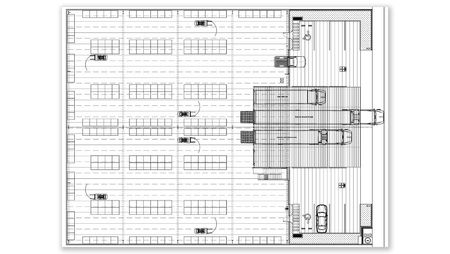
Características de la nave:

- Terreno privado de 2080 m2
- Nave 1518 m2
- Patio de maniobras y servicios 562 m2
- Altura máxima 11 m
- 8 cajones de estacionamiento independientes para vehículos
- 4 andenes para carga y descarga independientes
- 2 rampas para vehículos ligeros y pesados
- Pisos MR de alta resistencia
- Servicios independientes por nave (agua, acometida eléctrica en tres fases, fibra óptica)
- Patios de maniobras con posibilidad de cerca perimetral
-Oficinas con comedor y núcleos sanitarios (opcional)
- Cortinas enrollables mecánicas

Beneficios del parque:

-Ecotecnologías
- Urbanización de primer nivel
- Control de acceso
- Vigilancia 24/7
- Vialidades con asfalto
- Iluminación urbana solar
- Drenaje pluvial (Recarga de mantos acuíferos)
- Fibra óptica
- Red de agua potable
- Hotel operativo

El precio publicado es más IVA

En Castelli Park no solo adquieres una inversión estratégica, sino un modelo integral de soluciones ilimitadas.

Contáctanos hoy y agenda tu visita.

Amenities
  • Platform
  • Street parking
  • Handicap accessible
  • Ramps
  • 24 Hour Security

Inmobiliaria de Miguel Sanchez

  • LegadoBienesRaices.easybroker.com

Inmobiliaria de Miguel Sanchez

  • LegadoBienesRaices.easybroker.com